top of page

Pleck Road

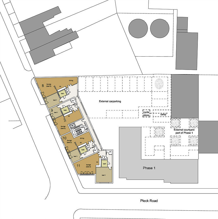
Typology: Architecture, Residential

Location: Walsall

Design of 15 number new build 1 and 2 bedroom apartment and the refurbishment of the existing building into 4 number 1 bedroom apartments

bottom of page